Magnífico Chalet de 5 Dormitorios y 3 Baños en San Javier
¡Novedad! ¡Oportunidad única! Descubre este espectacular Chalet de 5 dormitorios…
560.000€
Ciudad Quesada, Urbanización Doña Pepa, Rojales, Alicante, 03170, España
En Venta, Entrega Inmediata, OBRA NUEVA
871.162€
































Sin comisiones para el comprador
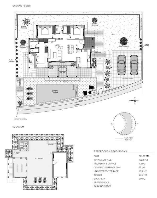
Una villa diseñada para vivir bien. Arquitectura mediterránea con alma contemporánea, luz natural en cada rincón y exteriores que enamoran: piscina privada, jardín vallado, tres terrazas y un espectacular solárium de 80 m² con vistas abiertas —perfecto para zona chill-out o cocina exterior.
Interiores con doble altura en el comedor, salón integrado con cocina de concepto abierto, dormitorio principal tipo suite y acabados de primera calidad. Todo incluido: aire acondicionado y mobiliario completo.
A 7 km de las playas de Guardamar y con acceso directo a servicios, restaurantes, campo de golf La Marquesa y colegios. Ideal para residencia permanente, segunda vivienda o inversión vacacional.
¡Novedad! ¡Oportunidad única! Descubre este espectacular Chalet de 5 dormitorios…
560.000€
Sin Comisiones para el Comprador. Descubre esta exclusiva villa independiente…
675.000€ 695.000€
Owning a home is a keystone of wealth… both financial affluence and emotional security.
Suze Orman